Création d’une extension de maison pour une suite parentale

Extension Maison suite parentale-MF-Renov-Extension

Nos clients souhaitaient disposer d’une suite parentale dans leur maison. La surface de la maison ne permettait pas d’y insérer un espace supplémentaire ; une extension à la maison a donc été réalisée pour créer une suite parentale de 40 m2. Découvrez son agencement !

Une extension suite parentale de 40 m2

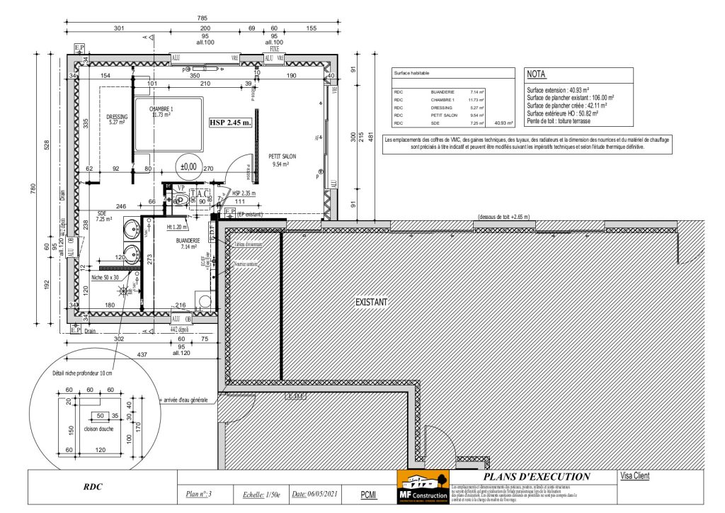
Cette extension maison dédiée à la suite parentale propose une surface à vivre de 40,93 m2. Cette extension comprend :

 

  • une chambre de 11,73 m2,
  • un dressing de 5,27 m2,
  • une salle d’eau de 7,25 m2,
  • des toilettes,
  • une buanderie de 7,14 m2
  • un petit salon de 9,54 m2

 

L’accès à cette extension maison suite parentale s’effectue par le petit salon depuis la maison principale. Le petit salon communique à la fois avec la chambre et les toilettes. Il est innondé de lumière grâce à une baie vitrée 3 vantaux et une seconde ouverture.

 

Cette extension maison suite parentale est conçue de manière bioclimatique. Le dressing et la salle d’eau sont disposés le long du pignon Est, faisant à la fois office d’isolant phonique et thermique. La chambre dispose d’une exposition sud et ouest grâce à son ouverture sur le petit salon. Nos clients disposent d’un dressing spatieux, permettant d’y agencer de nombreux rangements. La salle d’eau est également confortable en terme d’espace. Enfin, la chambre dispose d’un accès direct aux toilettes.

La buanderie complète la prestation de cette extension de 40 m2.

 

 

Cette extension toit plat s’intègre à l’architecture du bâti existant.

Plan Extension Maison 40 m2-MF-Renovation-Extension

Pourquoi créer une extension de maison pour une suite parentale ?

Créer une extension pour une suite parentale présente plusieurs avantages, tant en termes de confort que de valorisation de votre propriété. 

1. Espace Personnel et Intimité

– Une suite parentale offre aux parents un espace privé, séparé du reste de la maison, favorisant ainsi l’intimité et le confort.
– Cela permet également de créer un environnement calme et serein, idéal pour se détendre après une journée bien remplie.

2. Confort et Luxe

– Une suite parentale peut inclure des commodités supplémentaires telles qu’une salle de bain privative, un dressing, voire un coin salon. Cela augmente le confort de vie au quotidien.
– L’ajout de ces éléments peut transformer une chambre ordinaire en un espace luxueux et fonctionnel.

3. Augmentation de la Valeur Immobilière

– Une suite parentale peut considérablement augmenter la valeur de votre maison. C’est un atout recherché par de nombreux acheteurs potentiels, ce qui peut faciliter la vente de votre propriété à un prix plus élevé.
– Les extensions bien conçues et de haute qualité ajoutent de la superficie et améliorent l’attrait général de la maison.

4. Adaptabilité et Évolution des Besoins

– Les besoins de la famille évoluent avec le temps. Une suite parentale peut s’adapter à différentes phases de la vie, que ce soit pour accueillir un nouveau-né, servir de chambre d’amis ou de bureau à domicile.
– Elle peut également être un atout pour les familles multigénérationnelles, offrant un espace indépendant pour les parents âgés ou les invités.

5. Amélioration de la Qualité de Vie

– En offrant un espace de vie confortable et fonctionnel, une suite parentale améliore la qualité de vie des occupants. Elle permet de disposer de plus d’espace de rangement, de se détendre dans un cadre agréable et de mieux organiser sa vie quotidienne.